Villa singola in vendita

Lucca, Via gerani - Sant'Anna
€ 395.000
Prezzo aggiornato
4 locali 4 locali
122 Mq 122 Mq
1 bagno 1 bagno

Villa singola in vendita

Lucca, Via gerani - Sant'Anna

Descrizione annuncio

SANT'ANNA - LUCCA

VILLA INDIPENDENTE CON GIARDINO E GARAGE PRIVATI

A meno di 800 metri dalle mura di Lucca, in una zona tranquilla e residenziale vicina a tutti i principali servizi, proponiamo in vendita una graziosa villetta singola, completamente libera su quattro lati e circondata da un giardino privato e il garage.

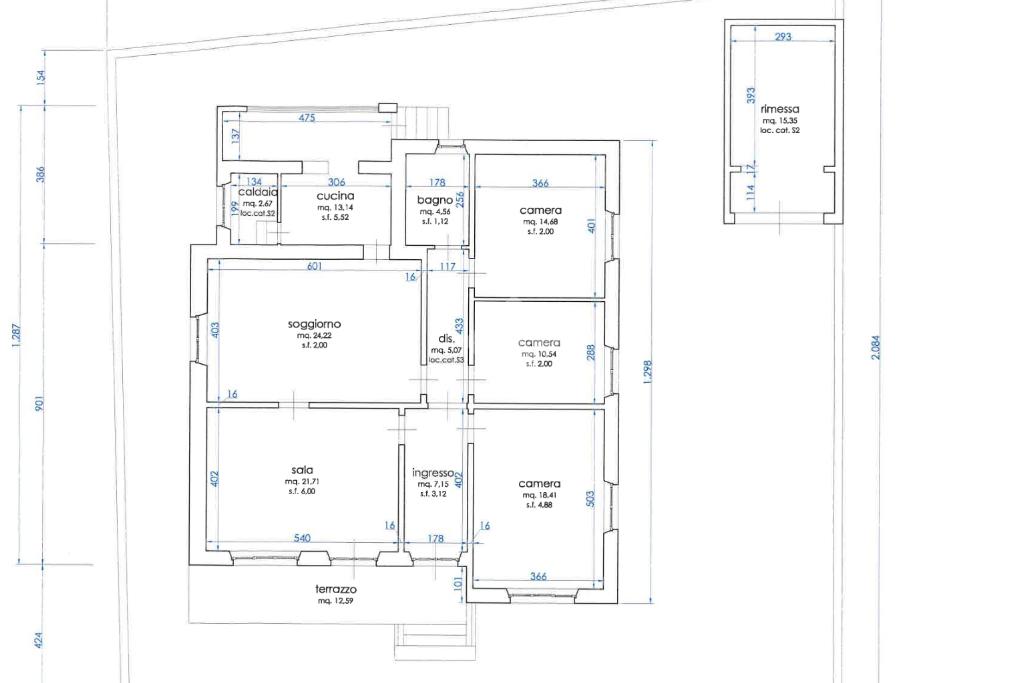
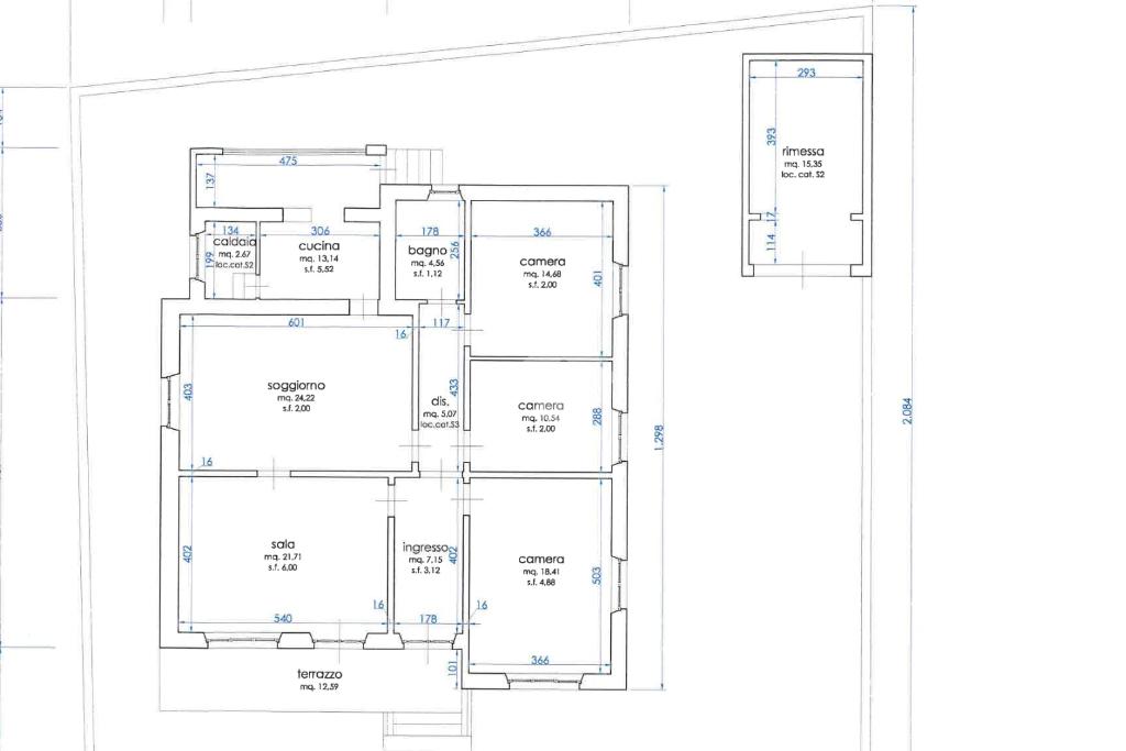
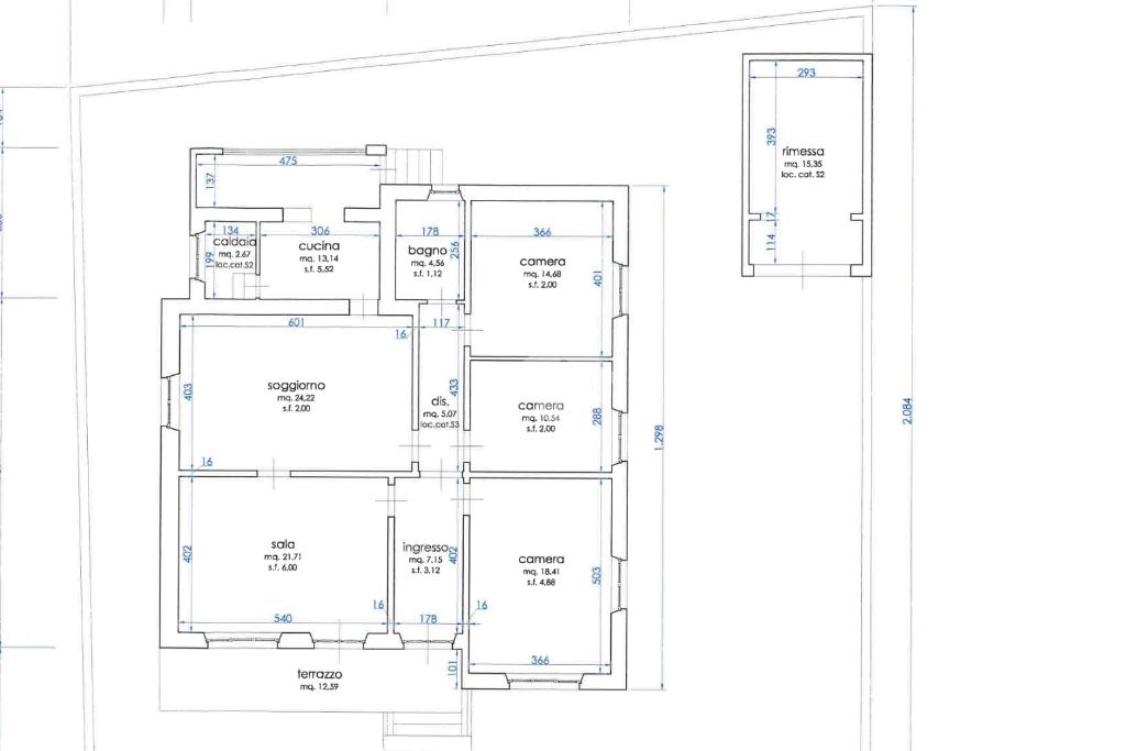
L’immobile si sviluppa interamente su un unico livello, per una superficie complessiva di circa 122 mq, e rappresenta la soluzione ideale per chi desidera vivere in un contesto riservato senza rinunciare alla vicinanza al centro.

La casa si compone di tre camere da letto, di cui due matrimoniali e una singola, un soggiorno accogliente con camino, una sala da pranzo luminosa e una cucina funzionale. Il bagno è finestrato e dotato di doccia. Completano la proprietà un garage e ampi spazi esterni che avvolgono l’abitazione.

Grazie alla distribuzione su un unico piano, alla posizione strategica e alla metratura generosa, questa villetta rappresenta un’opportunità unica per chi cerca indipendenza, comodità e qualità a pochi minuti dal cuore di Lucca.

La proprietà, costruita originariamente negli anni ‘50, si presenta in buone condizioni generali mantenendo le caratteristiche originali dell'epoca.

Fissa un appuntamento per visitare l’immobile chiamando lo 0583.059698 o inviando un’email a luca0.

L'indirizzo esposto è indicativo.

Mostra tutto

Nelle vicinanze

Trasporto pubblico Trasporto pubblico
Lucca
Lucca
1,6 Km
Trasporto pubblico
290 m
Via Guidiccioni Chiesa
Via Guidiccioni Chiesa
1,3 Km
Ricariche auto elettriche Ricariche auto elettriche
LUCCA Parcheggio Palatucci | ENELX
450 m
Lucca Parcheggio Puccetto | EnelX
620 m
Lucca Parcheggio Carducci | EnelX
920 m
EnelX EVA+ Lucca Carducci
950 m
Parcheggio Carducci
990 m
Scuole Scuole
Liceo Scientifico A. Vallisneri
130 m
Liceo A. Vallisneri
140 m
Infanzia, Medie, Elementari
180 m
Scuola Elementare Dante Alighieri
660 m
Liceo Classico "Niccolò Machiavelli"
1,1 Km
Farmacia Farmacia
Farmacia Mazzorini
510 m
Farmacia Centrale
1,1 Km
Farmacia Angeli
1,1 Km
Melosi
1,1 Km
Farmacia
1,2 Km
Ospedali Ospedali
Fisioterapia
1,7 Km
Presidio Ospedaliero Piana di Lucca
2,3 Km
Ospedali
2,4 Km
Supermercati Supermercati
Asian Grocery Snc
660 m
Natura Sì
690 m
Esselunga di viale Del Prete
850 m
Conad
1,0 Km
Tambellini
1,3 Km
Negozi Negozi
Prodotti Sergio Frati e Bomboloni
480 m
Abbigliamento Carla
680 m
Căsuța Prahoveană
710 m
Panificio Chifenti
830 m
Sapori e dintorni Conad
890 m
Bar Bar
Bar
200 m
San Michele
1,0 Km
Pasticceri Pinelli
1,1 Km
Pult
1,2 Km
blend
1,2 Km
Ristoranti Ristoranti
Löwengrube
430 m
A Tutta Pizza
640 m
Trattoria da Giulio
650 m
Lucca in tavola
710 m
Pizzeria L'Apizza
760 m
Mostra tutto

Caratteristiche

Rif.:
61127344
Piano:
1 di 1 (Piano terra con giardino)
Box:
1
Posti auto:
2
Balconi:
1
Terrazzi:
1
Mostra tutto
Prezzo Prezzo
€ 395.000
Rata mutuo Rata mutuo
€ 1.862 / mese
Spese annue Spese annue
€ 0
Proponi il tuo prezzoProponi il tuo prezzo

Classe Energetica

G
G
G
G
G
G
G
G
G
EP globale non rinnovabile:
123.00 kW h/m² anno
EP globale rinnovabile:
0.95 kW h/m² anno
EP invernale del fabbricato:
EP estiva del fabbricato:
Anno di costruzione:
1967
Riscaldamento:
Autonomo
Tipo impianto:
A radiatori
Tipo alimentazione:
Metano

Prezzo ridotto di €1 (5%%)

Ti interessa visionare l'immobile?

Fissa un appuntamento  Fissa un appuntamento

Richiedi informazioni

Clicca su Leggi per aprire l'informativa
* Questi campi sono obbligatori

Calcola il tuo mutuo

Semplice e senza impegno
Anticipo

( % )
Mutuo

( % )

pochi semplici passi

inserisci i tuoi dati
Questionario completato
Grazie per aver richiesto un appuntamento senza impegno con un nostro Consulente del Credito e Assicurativo.

Hai inserito correttamente tutti i dati necessari e a breve riceverai una e-mail con un link da convalidare per inviare i tuoi dati.
Affiliato
Studio Lucca Ovest Sas
Via Pisana, 38 55100 Lucca (LU)

Il nostro staff


  • Mariadomenica Carlucci
    Affiliata

  • Arianna Puppa
    Collaboratrice

  • Elisa Tursi
    Coordinatrice

  • Alessandro Anastasio
    Affiliato
Via Pisana, 38 55100 Lucca (LU)
Zona: Lucca
Mostra su mappa
Affiliato
Studio Lucca Ovest Sas
Via Pisana, 38 55100 Lucca (LU)

2026 Tecnocasa Franchising S.p.A. - P. IVA 08365160152 - Via Monte Bianco 60/A 20089 Rozzano (MI). Ogni agenzia ha un proprio titolare ed è autonoma. Privacy policy | Policy utilizzo | Cookie policy